LAMAR JOHNSON COLLABORATIVE / CHICAGO, ILLINOIS / 2024 - 2025
a new call center and office space for a local non-profit organization, 3,000sf
a new call center and office space for a local non-profit organization, 3,000sf
Dedicated to supporting local communities, United Way of Metro Chicago is a non-profit organization that shows up when it matters most. Guided by the slogan, “Neighbors helping neighbors,” they demonstrate that by providing rental assistance, access to healthcare services, and connections to meal programs and job resources. The brand new 2-1-1 Metro Chicago Center acts as a dedicated office space and call center to ensure these resources find their way to the right people. Small, but mighty, this office invests in creating a Chicago region where everyone has the opportunity to live a meaningful and authentic life.
THE EXISTING CONDITIONS
Images From My iPhone
The existing conditions were challenging, yet inspiring! The white box space offered us a blank canvas for our vision, while the layout presented obstacles such as lack of perimeter windows, a handful of skylights, 18’ ceilings, and an intricate building structure. We worked through a handful of iterations with the design team and client to ensure the space would work efficiently for their needs.
The existing conditions were challenging, yet inspiring! The white box space offered us a blank canvas for our vision, while the layout presented obstacles such as lack of perimeter windows, a handful of skylights, 18’ ceilings, and an intricate building structure. We worked through a handful of iterations with the design team and client to ensure the space would work efficiently for their needs.
THE CONCEPT
Mood Board & Finish Palette: Saturated & Layered
Rooted and woven in community, United Way of Chicago’s mission is integrated across the finishes. Familiar textures and colors evoke warmth while different hues and shades of blue incorporate their brand identity. This dynamic balance of warm and cool colors succeeds at creating a welcoming and hospitable environment for those coming to work every day, which is vital in helping community members access lifesaving services they need.
Rooted and woven in community, United Way of Chicago’s mission is integrated across the finishes. Familiar textures and colors evoke warmth while different hues and shades of blue incorporate their brand identity. This dynamic balance of warm and cool colors succeeds at creating a welcoming and hospitable environment for those coming to work every day, which is vital in helping community members access lifesaving services they need.
THE SPACE PLANS
Floor Plan
A simple, yet efficient design, the space plan applies traditional office planning strategies while utilizing areas for multiple purposes. Through the shared vestibule, users walk into a multifunctional touchdown lounge space that also operates as a reception. The open pantry under the first existing skylight of the space acts as a break room and as a large town hall presentation space. To top off typical front of house functions, the large conference room is adjacent to the entry for ease of client meetings. The remainder of the tenant space is filled with the call center, open office, private offices, and supporting spaces like a wellness room, storage, and other back of house functions.
A simple, yet efficient design, the space plan applies traditional office planning strategies while utilizing areas for multiple purposes. Through the shared vestibule, users walk into a multifunctional touchdown lounge space that also operates as a reception. The open pantry under the first existing skylight of the space acts as a break room and as a large town hall presentation space. To top off typical front of house functions, the large conference room is adjacent to the entry for ease of client meetings. The remainder of the tenant space is filled with the call center, open office, private offices, and supporting spaces like a wellness room, storage, and other back of house functions.
Finish Plan
While this project operated within a conservative budget, we made it a priority to not let that hinder the design and viewed this as a catalyst for creativity. We worked with our sales reps to specify high impact finishes that offered the look of luxury without the premium cost. Wood look LVT with different installation patterns and geometric carpet tile throughout the office spaces add a fun level of creativity without sacrificing budget. Simple and appreciated by the client!
While this project operated within a conservative budget, we made it a priority to not let that hinder the design and viewed this as a catalyst for creativity. We worked with our sales reps to specify high impact finishes that offered the look of luxury without the premium cost. Wood look LVT with different installation patterns and geometric carpet tile throughout the office spaces add a fun level of creativity without sacrificing budget. Simple and appreciated by the client!
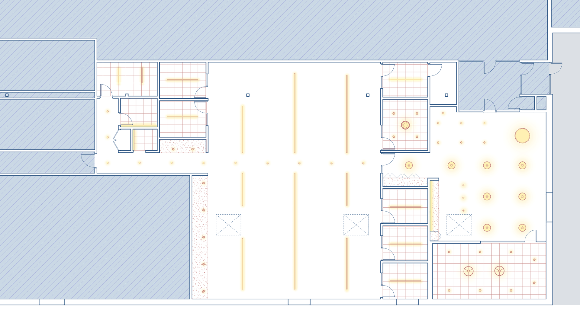
Reflected Ceiling Plan
The lack of perimeter windows, but gorgeous collection of skylights posed a lighting challenge. We worked closely with our lighting consultant to ensure we were reaching proper light levels given those circumstances. The lighting team was super helpful in finding the design team light fixtures that met the budget without sacrificing design intent. While the space is on the smaller side, we were strategic with the lighting design to create different “zones” so employees could pick the space that best fit their workday or break away from the call center.
The lack of perimeter windows, but gorgeous collection of skylights posed a lighting challenge. We worked closely with our lighting consultant to ensure we were reaching proper light levels given those circumstances. The lighting team was super helpful in finding the design team light fixtures that met the budget without sacrificing design intent. While the space is on the smaller side, we were strategic with the lighting design to create different “zones” so employees could pick the space that best fit their workday or break away from the call center.
THE SPACES
Pantry / Work Cafe
Call center work is both vocally and emotionally draining, so managing sound and providing a space to step away for breaks were top priorities across the project. With both of those points in mind, we embraced the challenge of the height and skylight, adding acoustic panels in various shades of white to mitigate both acoustics and light, softening the space. The blending of colors and textures from the overall concept provide a space of respite and recharge for the employees working tirelessly to connect Chicagonians to resources they need.
Call center work is both vocally and emotionally draining, so managing sound and providing a space to step away for breaks were top priorities across the project. With both of those points in mind, we embraced the challenge of the height and skylight, adding acoustic panels in various shades of white to mitigate both acoustics and light, softening the space. The blending of colors and textures from the overall concept provide a space of respite and recharge for the employees working tirelessly to connect Chicagonians to resources they need.
Open Office Call Center
We carried the acoustic datum throughout the open office and adjusted the contrast of the finishes to make the space feel less overwhelming and more human-scaled. The texture of the wallcoverings and acoustics helped liven up the space, making it feel more vibrant and energized.
We carried the acoustic datum throughout the open office and adjusted the contrast of the finishes to make the space feel less overwhelming and more human-scaled. The texture of the wallcoverings and acoustics helped liven up the space, making it feel more vibrant and energized.
THE END RESULT
Ribbon Cutting
It was an honor working on this project. The impact United Way of Metro Chicago is immeasurable and that impact will now only grow with this new office space. Brandon Johnson was kind enough to attend and give a little speech, I was starstruck! If you made it this far, thanks for reading :)
It was an honor working on this project. The impact United Way of Metro Chicago is immeasurable and that impact will now only grow with this new office space. Brandon Johnson was kind enough to attend and give a little speech, I was starstruck! If you made it this far, thanks for reading :)